
















































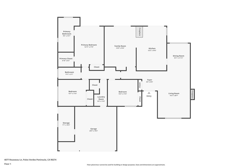
Tucked away in one of the Peninsula's most desirable neighborhoods, this updated 3-bedroom, 2-bath home offers over 2,000 square feet of thoughtfully designed living space on a spacious 9,702 sq ft lot. Clean contemporary lines, a bright open layout, and generous natural light define the interior. The modern kitchen features sleek countertops and updated finishes, flowing into airy living and dining areas that feel both open and connected -- ideal for everyday living and casual entertaining. All on one level, the home's layout offers ease and comfort, with well-sized bedrooms and a relaxed, welcoming atmosphere throughout. Step outside to a large backyard made for gatherings, play, or simply unwinding in privacy. Located next to the prestigious Chadwick School and surrounded by the scenic charm of the Palos Verdes Peninsula, this move-in ready home blends style, space, and location -- a rare find in an exceptional community.
It’s a big city with lots going on and excellent weather year-round.
Explore neighborhoodAs agents that are experts in this local area, we bring a wealth of knowledge and expertise about buying and selling real estate here. It's not the same everywhere, so you need someone you can trust for up-to-date information. We are eager to serve you.
Contact Us